Koop:De Vest 6, 5555 XL Valkenswaard - Foto
Topper
+10

De Vest 6 5555 XL Valkenswaard € 199.950,- v.o.n.

  • Bedrijfshal
  • Bouwjaar 2026
  • 2.768 m² perceeloppervlakte
  • 169 m² vloeroppervlakte
Nieuwbouwproject op een toplocatie in Valkenswaard!

Beschrijving

De Vest 6, Valkenswaard - Update: Reeds 85% onder optie!

Beschrijving
Op bedrijventerrein Schaapsloop I in Valkenswaard ontwikkelt BASE Projectontwikkeling het hoogwaardige nieuwbouwproject De Vest 6. Het bedrijfsverzamelgebouw bestaat in basis uit donkergrijze elementen met witte tinten en houten elementen waardoor het geheel een moderne en tijdloze uitstraling heeft. Dit maakt dat de units over 20 jaar nog steeds representatief zijn. Daarbij is er sprake van milieucategorie 1 t/m 4.2. Dit betekent dat naast lichte bedrijfsactiviteiten ook zwaardere bedrijvigheid is toegestaan, zoals productie, assemblage en grootschalige opslag.

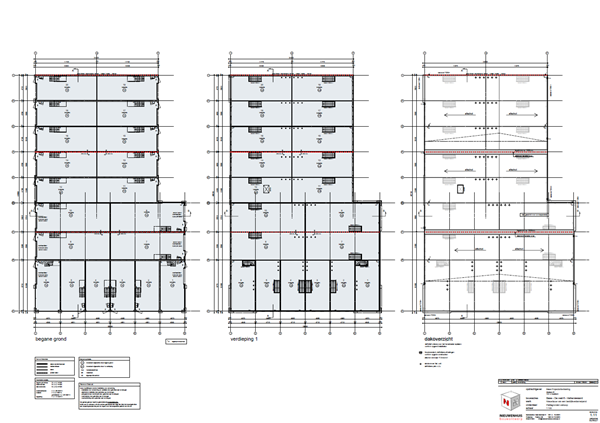
De units beschikken over een vrije hoogte van circa 3,50 meter en zijn voorzien van een ruim bemeten overheaddeur. Hierdoor zijn de ruimtes uitstekend geschikt voor groothandelsbedrijven met kantoorruimte, werkplaatsen of opslag-/hobbyruimtes. Dit maakt de units niet alleen functioneel, maar ook een interessant beleggingsproduct met toekomstwaarde. Het bedrijfsverzamelgebouw heeft een bruto vloeroppervlakte van circa 2.469 m², verdeeld over 20 bedrijfsunits. Er zijn zeven type units beschikbaar, met oppervlaktes van 98 m² tot en met 169 m². Indien gewenst kunnen units worden samengevoegd of gecombineerd om een grotere bedrijfsruimte te creëren. Daarnaast beschikt elke unit over twee eigen parkeerplaatsen op eigen terrein, wat bijdraagt aan het gebruiksgemak.

In basis worden de units casco opgeleverd maar uiteraard is er ook de mogelijkheid meerwerk uit te laten voeren. In deze brochure vindt u een overzicht van mogelijke uitbreidingen. Daarnaast is, in overleg met de aannemer Nieuwenhuis Bouw, een turn-key oplevering of maatwerkplan mogelijk om de bedrijfsunit volledig af te stemmen op uw wensen.

Beschikbare oppervlakte voor de verkoop:
Ca. 2.469 m² b.v.o. totaal - verdeeld over 20 units voorzien van 2 bouwlagen.

Unit 1: ca. 100 m² (b.v.o.) - gelijk verdeeld over 2 bouwlagen met 2 parkeerplaatsen
Unit 2: ca. 98 m² (b.v.o.) - gelijk verdeeld over 2 bouwlagen met 2 parkeerplaatsen
Unit 3: ca. 98 m² (b.v.o.) - gelijk verdeeld over 2 bouwlagen met 2 parkeerplaatsen
Unit 4: ca. 98 m² (b.v.o.) - gelijk verdeeld over 2 bouwlagen met 2 parkeerplaatsen
Unit 5: ca. 98 m² (b.v.o.) - gelijk verdeeld over 2 bouwlagen met 2 parkeerplaatsen
Unit 6: ca. 100 m² (b.v.o.) - gelijk verdeeld over 2 bouwlagen met 2 parkeerplaatsen
Unit 7: ca. 162 m² (b.v.o.) - gelijk verdeeld over 2 bouwlagen met 2 parkeerplaatsen
Unit 8: ca. 162 m² (b.v.o.) - gelijk verdeeld over 2 bouwlagen met 2 parkeerplaatsen
Unit 9: ca. 169 m² (b.v.o.) - gelijk verdeeld over 2 bouwlagen met 2 parkeerplaatsen
Unit 10: ca. 168 m² (b.v.o.) - gelijk verdeeld over 2 bouwlagen met 2 parkeerplaatsen
Unit 11: ca. 121 m² (b.v.o.) - gelijk verdeeld over 2 bouwlagen met 2 parkeerplaatsen
Unit 12: ca. 121 m² (b.v.o.) - gelijk verdeeld over 2 bouwlagen met 2 parkeerplaatsen
Unit 13: ca. 121 m² (b.v.o.) - gelijk verdeeld over 2 bouwlagen met 2 parkeerplaatsen
Unit 14: ca. 121 m² (b.v.o.) - gelijk verdeeld over 2 bouwlagen met 2 parkeerplaatsen
Unit 15: ca. 121 m² (b.v.o.) - gelijk verdeeld over 2 bouwlagen met 2 parkeerplaatsen
Unit 16: ca. 121 m² (b.v.o.) - gelijk verdeeld over 2 bouwlagen met 2 parkeerplaatsen
Unit 17: ca. 121 m² (b.v.o.) - gelijk verdeeld over 2 bouwlagen met 2 parkeerplaatsen
Unit 18: ca. 121 m² (b.v.o.) - gelijk verdeeld over 2 bouwlagen met 2 parkeerplaatsen
Unit 19: ca. 123 m² (b.v.o.) - gelijk verdeeld over 2 bouwlagen met 2 parkeerplaatsen
Unit 20: ca. 123 m² (b.v.o.) - gelijk verdeeld over 2 bouwlagen met 2 parkeerplaatsen

Opleveringsniveau bedrijfsunits:
Representatieve gevel afwerking
Goede vloer-, gevel en dakisolatie
Gebouw hoogte: ca. 7,25 meter
Vrije hoogte: ca. 3,50 meter
Vloerbelasting begane grond: 1.000 kg/m²
Vloerbelasting verdieping: 500 kg/m²
2 eigen parkeerplaatsen per unit
Afgewerkte betonvloer
Betonnen verdiepingsvloer
Draai-/kiepraam
Elektrische overheaddeur (3,0 x 3,2 m)
Prefab-meterkast
Trap

Locatie
Het project is gelegen aan De Vest 6 op bedrijventerrein Schaapsloop I in Valkenswaard. Deze locatie biedt uitstekende bereikbaarheid dankzij de directe aansluiting op de N396 en de nabijheid van de A2 (Eindhoven – Maastricht, ca. 4 min. rijden). Ook België is goed bereikbaar via de grensovergang bij Lommel.

Openbaar vervoer is op loopafstand aanwezig, met directe verbindingen naar het centrum van Valkenswaard en station Eindhoven Centraal. In de directe omgeving zijn bedrijven als VDL, MCB Nederland en Brabantia gevestigd.

Kadastrale gegevens
Het project betreft een appartementsrecht binnen een nog op te richten Vereniging van Eigenaars (VvE).

Kadastrale inschrijving en inmeting zijn inbegrepen in de koopprijs.

Datum beschikbaar
De verwachte start bouw is gepland voor Q1 2026, mits 70% van de units is verkocht.
De oplevering zal plaatsvinden binnen maximaal 250 werkbare werkdagen na start bouw.

Bijzonderheden
Casco oplevering met betonnen verdiepingsvloer, overheaddeur, loopdeur en prefab meterkast
RC-waarde gevel: 4,7 m²K/W | Dak: 6,3 m²K/W
Kunststof kozijnen met inbraakwerend hang- en sluitwerk (klasse 2)
Zonnepanelen, installaties, toilet, afbouw en hekwerk zijn niet inbegrepen, wel optioneel
Reclame toegestaan op daartoe aangewezen vlak
Mogelijkheid tot maatwerk (meerwerkopties beschikbaar)

Bestemming: bedrijven tot en met milieucategorie 4.2

Koopcondities
Koopsom bedrijfsunits v.o.n. (excl. btw):
Unit 1: € 214.950,-
Unit 2: € 199.950,-
Unit 3: € 199.950,-
Unit 4: € 199.950,-
Unit 5: € 199.950,-
Unit 6: € 214.950,-
Unit 7: € 269.950,-
Unit 8: € 269.950,-
Unit 9: € 279.950,-
Unit 10: € 274.950,-
Unit 11: € 214.950,-
Unit 12: € 219.950,-
Unit 13: € 214.950,-
Unit 14: € 214.950,-
Unit 15: € 214.950,-
Unit 16: € 214.950,-
Unit 17: € 214.950,-
Unit 18: € 214.950,-
Unit 19: € 214.950,-
Unit 20: € 219.950,-

Inclusief in koopsom zijn de Grondkosten, Bouwkosten, Notariskosten overdracht, Legeskosten, Kadastrale inschrijving en inmeten, Architect kosten en makelaarscourtage.

Exclusief in koopsom zijn de BTW, Aansluitkosten nutsvoorzieningen, Kosten hypotheekakte en taxatie, Eventueel meerwerk (zoals ventilatie, extra afvoeren, glazen pui), Installaties (toilet, pantry), Afbouw, hekwerk, zonnepanelen.

Notaris:
Door verkoper te bepalen

Zekerheidsstelling
10% van de koopsom inclusief btw te stellen bij de ondertekening van de koopovereenkomst.

Btw
prijzen exclusief 21% btw

Meer informatie
Wenst u meer informatie over deze beschikbare bedrijfsunits in dit nieuwbouw bedrijfscomplex aan De Vest 6 te Valkenswaard , neem dan vrijblijvend contact op met één van de bedrijfsmakelaars bij Heuvel Vastgoed B.V. Onze bedrijfsmakelaar de heer Derek van den Heuvel is van alle beschikbare informatie op de hoogte betreffende de verkoop van de nieuwbouw bedrijfsunits aan De Vest 6 te Valkenswaard.

Contact
040 - 206 54 32
info@heuvelvastgoed.nl

Kaart

Kenmerken

Overdracht

Referentienummer
HV-25-204
Koopsom
€ 199.950,- v.o.n.
Aanvaarding
In overleg
Aangeboden sinds
Maandag 7 juli 2025
Laatste wijziging
Maandag 22 september 2025

Bouw

Type object
Bedrijfshal
Soort bouw
Nieuwbouw
Bouwperiode
2026

Oppervlaktes en inhoud

Perceeloppervlakte
2.768 m²
VVO
169 m²
In units vanaf
98 m²
Vrije hoogte
3,5 m.
Draagvermogen
1.000 kg/m²

Locatie

Ligging
Industrieterrein
Lokale voorzieningen
Bank op 1000 meter tot 1500 meter
Geldautomaat op 1000 meter tot 1500 meter
Recreatie op 1500 meter tot 2000 meter
Restaurant op 2000 meter tot 3000 meter
Winkel op 1500 meter tot 2000 meter
Supermarkt op 1000 meter tot 1500 meter
Bereikbaarheid
Bushalte op 1000 meter tot 1500 meter
Treinstation op 5000 meter of meer
Afrit van de snelweg op 1500 meter tot 2000 meter

Uitrusting

Aantal parkeerplaatsen
2
Uitrusting
Betonvloer
Krachtstroom
Overheaddeuren

Kadastrale gegevens

Kadastrale aanduiding
Valkenswaard I 528
Perceeloppervlakte
1.749 m²
Omvang
Geheel perceel
Eigendomsituatie
Eigen grond
Kadastrale aanduiding
Valkenswaard I 322
Perceeloppervlakte
1.019 m²
Omvang
Geheel perceel
Eigendomsituatie
Eigen grond

Media

Foto's

Plattegronden

Brochure(s) en overige bijlagen

BASE De Vest 6 brochure V2.pdf Download