Verhuurd:De Huufkes 58, 5674 TM Nuenen - Foto
Verhuurd
+7

De Huufkes 58 5674 TM Nuenen

  • Bedrijfshal
  • Bouwjaar 2000
  • 1.397 m² perceeloppervlakte
  • 340 m² vloeroppervlakte
  • A Energielabel A

Beschrijving

Te huur – Huufkes 58 – Nuenen

Omschrijving:
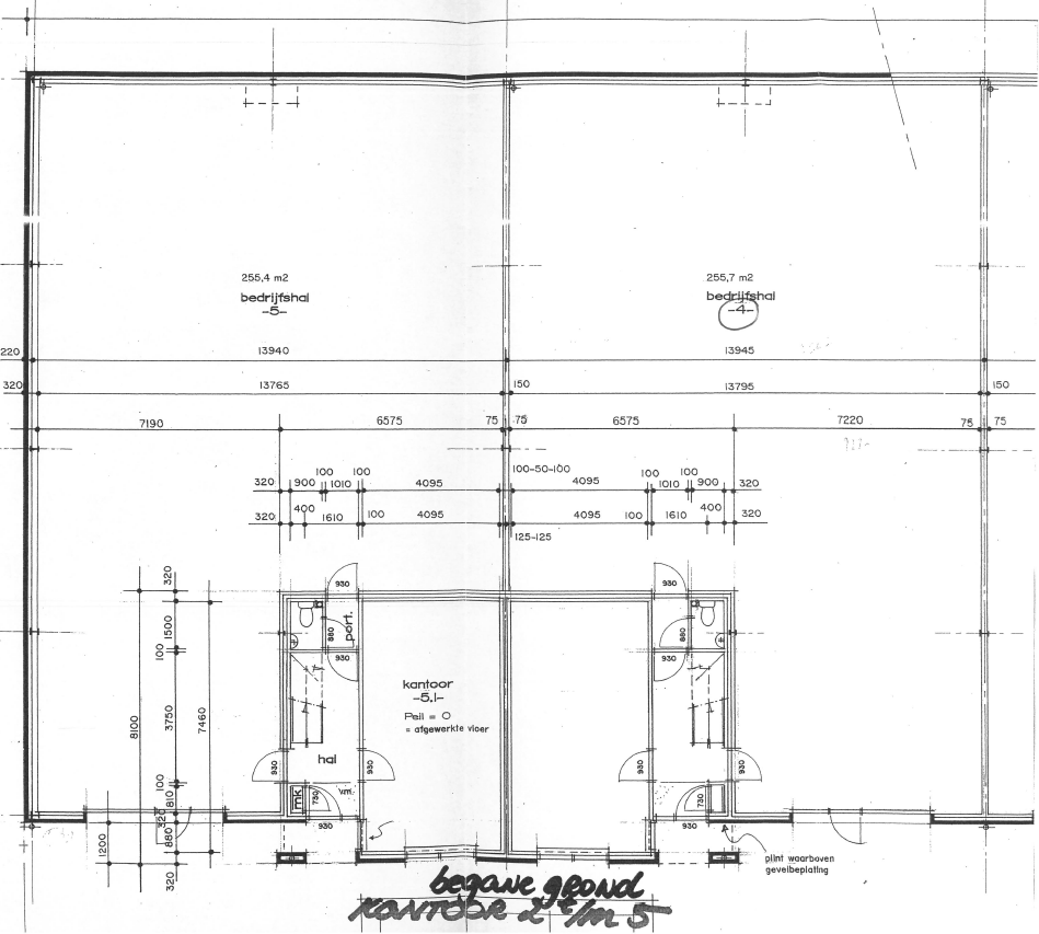
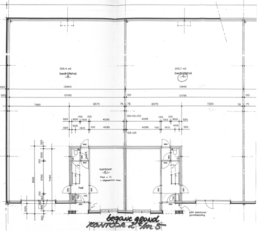
Op een uitstekende locatie op bedrijventerrein Eeneind II in Nuenen bieden wij deze moderne bedrijfsruimte van circa 255 m² te huur aan, inclusief representatieve kantoorruimte van circa 85 m². De bedrijfsruimte is gelegen op een ruim perceel met twee parkeerplaatsen, buitenterrein en een overheaddeur.

Locatie & Bereikbaarheid:
Huufkes 58 is gelegen op bedrijventerrein Eeneind II, een verzorgd en gemengd bedrijventerrein in Nuenen, op slechts enkele minuten van de A270 (Eindhoven-Helmond). Via deze weg zijn de A2 en A67 uitstekend bereikbaar, waardoor snelle verbindingen ontstaan richting steden als Eindhoven, Venlo, Tilburg en Maastricht. Het centrum van Nuenen ligt op circa 2 kilometer afstand en biedt diverse voorzieningen.

Oppervlakten (circa):
Bedrijfsruimte: 255 m²
Kantoorruimte: 85 m²
Parkeerplaatsen: 2 stuks

Opleveringsniveau
Bedrijfsruimte:
Overheaddeur (4,00x4,20) met ramkraak beveiligin;
Heater (gasgestookt);
Betonvloer (1.500 kg/m²);
Vrije hoogte ca. 5,45 m;
Krachtstroom 3x25 ampere;
Brandpreventiemiddelen;
Alarminstallatie.

Kantoorruimte:
Systeemplafond;
Airco's;
Ledverlichting;
Kamerindeling;
verwarming d.m.v. radiatoren;
Toiletgroepen;
Brandmeldinstallaties, rookmelders en brandblusvoorzieningen;
Glasvezel.

Bijzonderheden:
Onderdeel van bedrijfscomplex op ruim perceel
Gunstige ligging
Representatieve afwerking

Kantoren verdeeld over begane grond en eerste verdieping
Uitstekend bereikbaar met zowel personen- als vrachtverkeer

Huurcondities:
Huurprijs: € 32.000,- per jaar, exclusief btw
Huurtermijn: 5 jaar
Verlenging: 5 jaar
Opzegtermijn: 12 maanden
Betalingswijze: Per kwartaal vooruit
Indexering: Jaarlijks op basis van CPI, voor het eerst één jaar na ingangsdatum
Zekerheidstelling: Bankgarantie ter grootte van drie maanden huur inclusief btw
BTW: Huurder dient het gehuurde voor ten minste 90% te gebruiken voor btw-belaste prestaties

Huurcontract:
De huurovereenkomst wordt opgesteld conform het model van de Raad voor Onroerende Zaken (ROZ 2015), inclusief de bijbehorende Algemene Bepalingen voor kantoorruimte en andere bedrijfsruimte in de zin van artikel 7:230a BW.

Bestemmingsplan:
Het object valt onder het bestemmingsplan “Eeneind 2018” van de gemeente Nuenen. Bestemming: Bedrijf, geschikt voor bedrijvigheid tot en met milieucategorie 4.2.

Contact:
Voor meer informatie of een bezichtiging kunt u contact opnemen met Heuvel Vastgoed:
040 – 206 54 32
info@heuvelvastgoed.nl

Kaart

Kenmerken

Overdracht

Referentienummer
00381
Huurprijs
€ 32.000,- per jaar
Borg
€ 8.687,50
Status
Verhuurd
Aanvaarding
Direct
Aangeboden sinds
Dinsdag 15 april 2025
Laatste wijziging
Woensdag 28 januari 2026

Bouw

Type object
Bedrijfshal
Soort bouw
Bestaande bouw
Bouwperiode
2000

Oppervlaktes en inhoud

Perceeloppervlakte
1.397 m²
VVO
255 m²
Kantoor oppervlakte
85 m²
Totale verhuurbare vloeroppervlakte
340 m²
Vrije hoogte
5,5 m.

Locatie

Ligging
Bedrijventerrein
Industrieterrein
Lokale voorzieningen
Bank op 2000 meter tot 3000 meter
Geldautomaat op 2000 meter tot 3000 meter
Recreatie op 1000 meter tot 1500 meter
Restaurant binnen 500 meter
Winkel op 1000 meter tot 1500 meter
Supermarkt op 2000 meter tot 3000 meter
Bereikbaarheid
Bushalte binnen 500 meter
Treinstation op 4000 meter tot 5000 meter
Trein voorhalte op 4000 meter tot 5000 meter
Afrit van de snelweg op 1500 meter tot 2000 meter

Energieverbruik

Energielabel
A
Energie-index
1

Uitrusting

Aantal parkeerplaatsen
2
Uitrusting
Betonvloer
Heater
Krachtstroom
Overheaddeuren
Pantry
Toilet
Heeft een kantoor
Ja

Kadastrale gegevens

Kadastrale aanduiding
Nuenen, Gerwen en Nederwetten C 3884
Perceeloppervlakte
1.397 m²
Omvang
Deel perceel
Eigendomsituatie
Eigen grond

Media

Foto's

Plattegronden

Brochure(s) en overige bijlagen

Brochure Huufkes 58 Nuenen.pdf Download